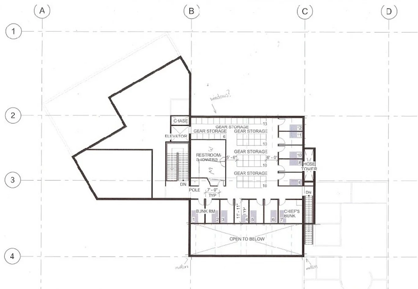
ACE Floorplan

These floorplans were also done in my extra curricular architecture class. These were done in person and constructed by myself. I was given a space with specific square feet requirements and had to include all the necessary additions to the space. Such as, bunks, bathrooms, stairs, elevator, gym, and a lounge. It was an inspiring project and hands-on, which was educational. (Mar 2023)

Previous
Previous

ACE 3D Design